Sæbyhagen

2

Soverom

1

Bad

80

m2

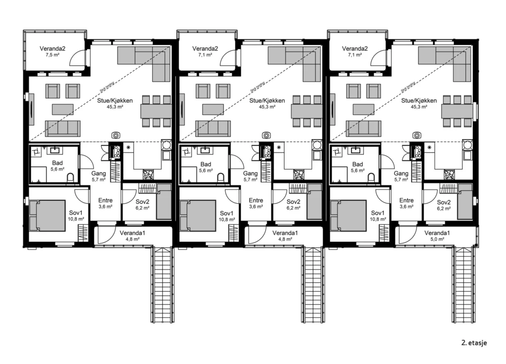
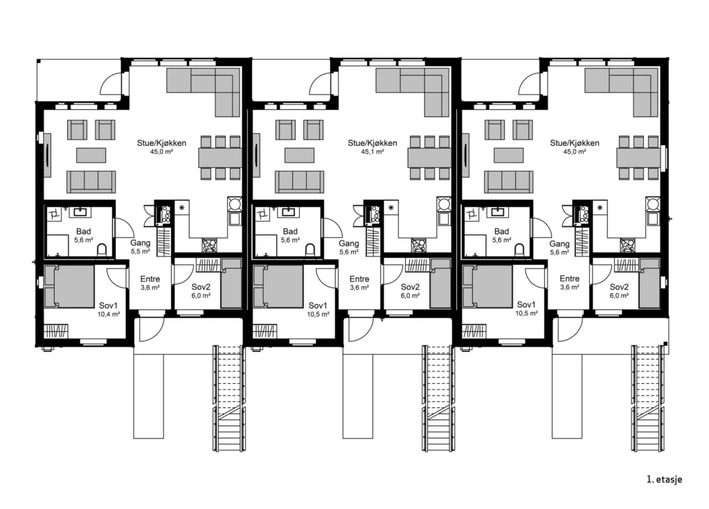
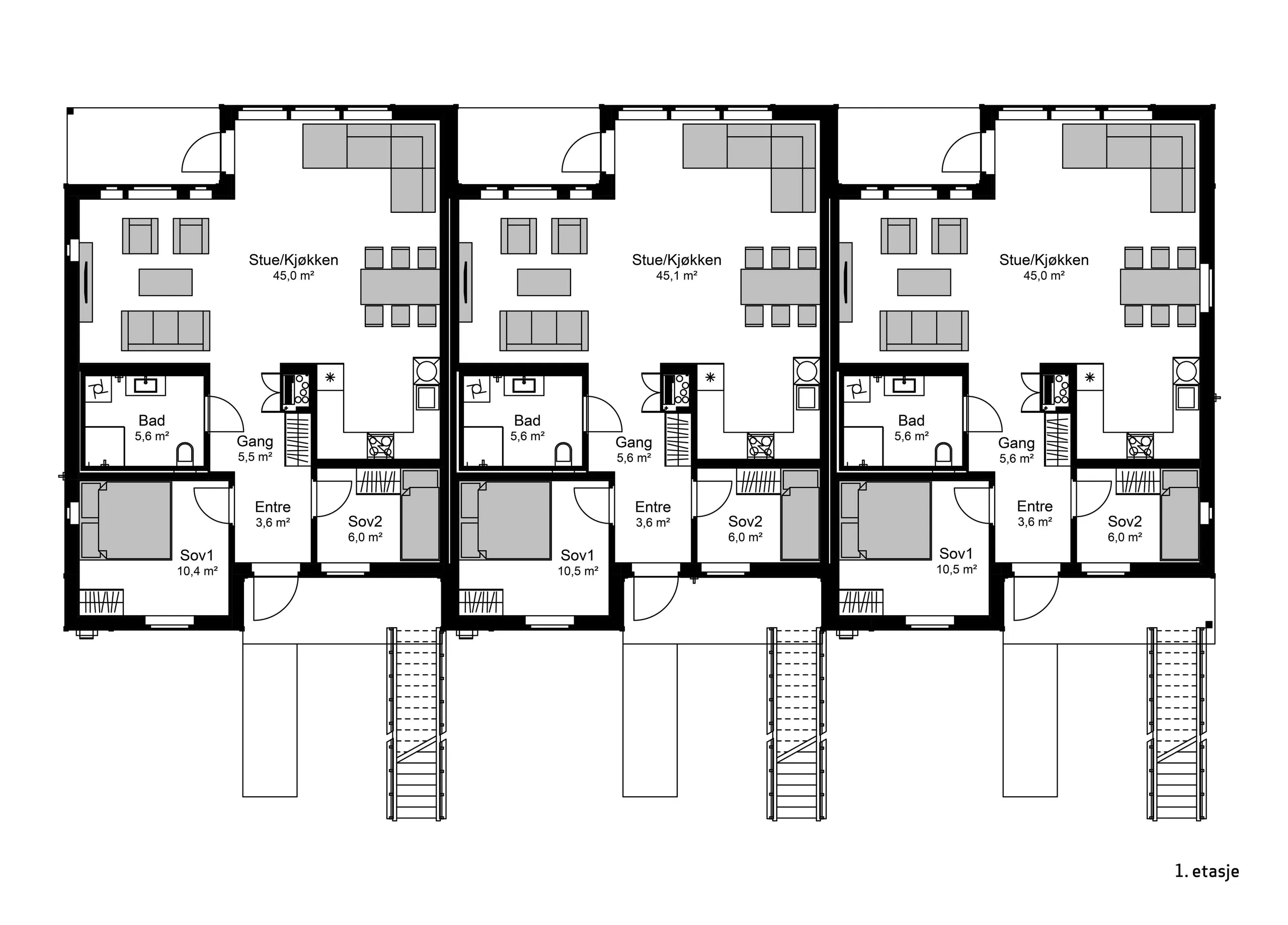
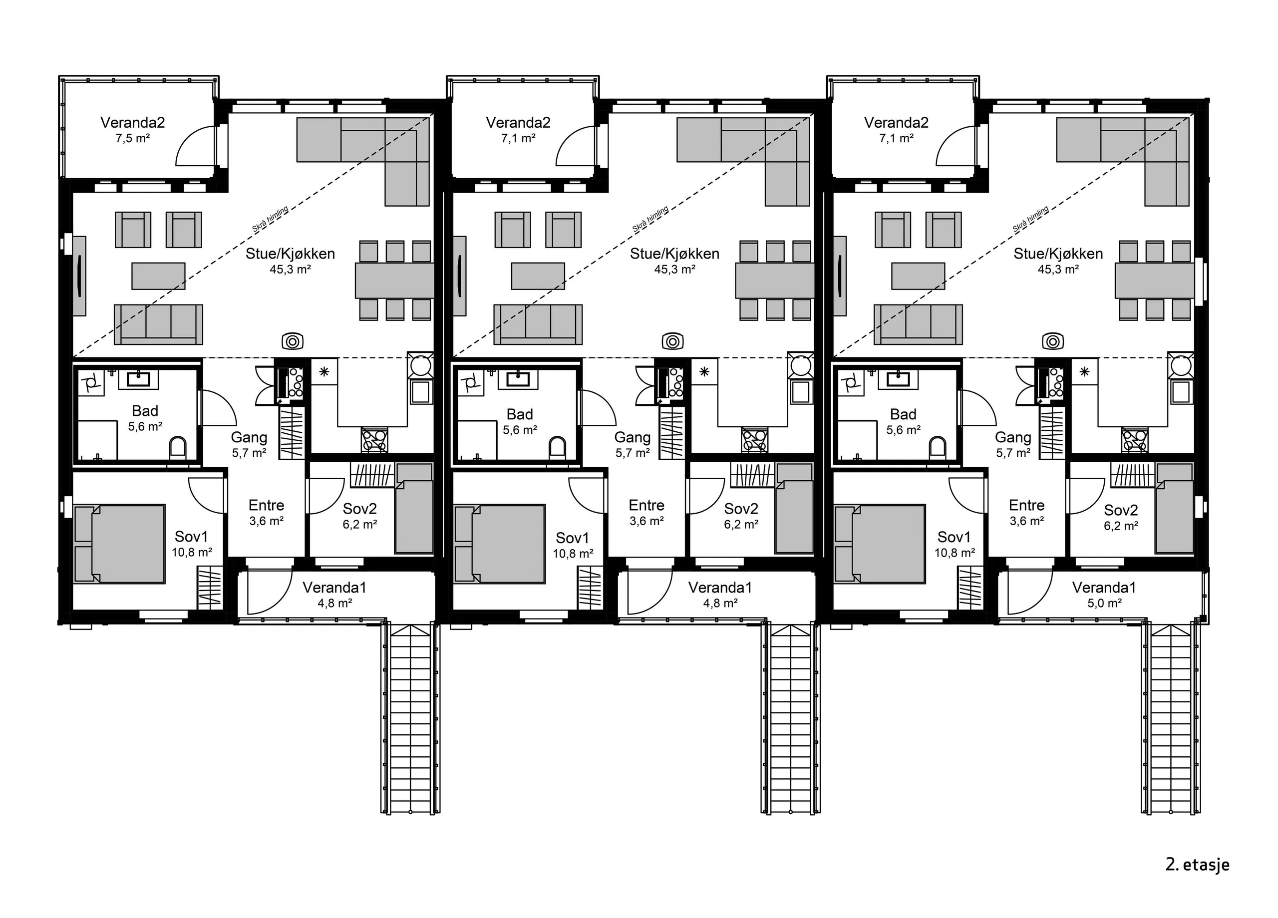
Moderne 6-mannsbolig med to etasjer Med to soverom gir boligen tilstrekkelig med plass til individuell plass og privatliv. Enten det er for familiehygge eller å ha gjester over, vil denne 6-mannsbolig imøtekomme dine behov. Boligen er en moderne og allsidig bolig som tilbyr den perfekte kombinasjonen av stil og funksjonalitet. Den er designet for å møte dine behov og gir et hjem hvor du kan trives i.

Nøkkel Info

Boligtype

Leilighet

Eierform

Eier (Selveier)

Bruksareal

80

m2

Tomt

Eiet

Byggeår

2025

Soverom

2

Rom

3

Bad

1

Fasiliteter

Innlagt vann

Balkong/Terrasse

Barnevennlig

Bilvei frem

Garasje/P-plass

Peis/Ildsted

Rolig

Innlagt strøm

Offentlig vann/kloakk

Ressurser

Kontaktinfo

Sondre

Nygaard

Daglig leder